- Woonoppervlakte
- Circa 300 m²
- Perceeloppervlakte
- Circa 685 m²
- Bouwjaar
- Gebouwd in 1991
- Aantal kamers
- 5 kamers (4 slaapkamers)
Vraagprijs: € 850.000,- euro k.k.
Aanvaarding: in overleg
UNIEKE KANS!
Op een schitterende en rustige locatie in de geliefde villawijk "Moltbos" staat deze stijlvolle, vrijstaande villa met een uitzonderlijk royaal woonoppervlak. Omringd door groen, luxe en privacy biedt deze woning alles wat u zich kunt wensen: een riante living met gashaard, een splinternieuwe woonkeuken (2024), 4 ruime slaapkamers, 2 luxe badkamers, een groot souterrain met dubbele garage en een fraai aangelegde tuin met een heerlijke Ibiza-sfeer.
Souterrain:
Het souterrain biedt volop mogelijkheden en beschikt over een multifunctionele ruimte (ca. 3,87m x 3,35m) en een royale slaapkamer (ca. 36m²) met directe toegang tot een moderne badkamer (ca. 9m²) voorzien van een wastafelmeubel, spiegelkast en luxe douchecabine. De verwarmde dubbele garage (ca. 60 m²) is uitgerust met inbouwkasten en twee elektrische sectionaalpoorten. Daarnaast is er een praktische wasruimte met aansluitingen voor witgoed en extra bergruimte.
Begane grond:
Aan de voorzijde bevindt zich een fraai aangelegde voor- en zijtuin met dubbele oprit en volop parkeergelegenheid. Via een elegante trap bereikt u de entree van de woning. De riante ontvangsthal beschikt over een moderne meterkast en een volledig betegelde toiletruimte met fonteintje. De royale living (totaal ca. 113 m² inclusief keuken!) is voorzien van een sfeervolle gashaard en meerdere openslaande deuren naar de tuin en het balkon. De luxe woonkeuken is een echte blikvanger en beschikt over een royaal kookeiland en hoogwaardige inbouwapparatuur: inductiekookplaat met geïntegreerde afzuiging, koelkast, combi-oven-magnetron en vaatwasser. De zonnige, op het zuiden gelegen achtertuin is onderhoudsvriendelijk aangelegd en biedt ultieme privacy. Hier geniet u van het buitenleven met een groot (deels overdekt) terras, weelderige beplanting, een zij-ingang en een heerlijke Ibiza-sfeer.
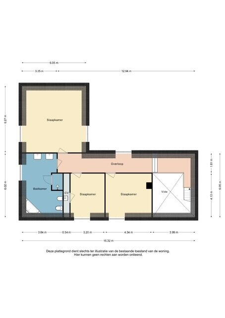
Eerste verdieping:
Riante overloop met sfeervolle vide; ruime slaapkamer 2 (ca. 32m²) met fraaie inbouwkasten, slaapkamer 3 (ca. 15m²), slaapkamer 4 (ca. 13m²) met inbouwkast en toegang naar cv-ruimte met opstelplaats cv-combi-installatie (eigendom). De royale badkamer (ca. 19m²) is compleet uitgerust met een inloopdouche, bidet, toilet, dubbele wastafel en daglichttoetreding.
Tweede verdieping:
Via een luik vanuit de cv-ruimte is de bergvliering bereikbaar.
Bijzonderheden:
- Luxe vrijstaande villa met royaal woonoppervlak op een ruim perceel;
- Gelegen in rustige, groene en geliefde woonomgeving;
- Energielabel C;
- Volledig voorzien van (hard)houten kozijnen met dubbele beglazing;
- Alarm-/ en camerasysteem aanwezig;
- In 2025 zijn alle buitengevels opnieuw geschilderd;
- Royale dubbele oprit met ruime parkeergelegenheid;
- Marmeren vloeren met vloerverwarming op begane grond en eerste verdieping;
- Souterrain met tegel- en siergrindvloer;
- Keurig onderhouden en instapklaar;
- Veel gebruiksmogelijkheden;
- Nabij winkels, scholen, natuurgebieden en uitvalswegen.
Dit object wordt u aangeboden in collegiale samenwerking met Trafas Makelaardij.
Voor de exacte maten in deze presentatie zie bijgevoegde plattegronden.
Voor het maken van een afspraak kunt u contact opnemen met verkopend makelaar: Tom van Houtem (06-20269830).
Disclaimer;
* Alle maten zijn circa maten;
* Aan deze presentatie kunnen geen rechten worden ontleend;
* De waarborgsom/bankgarantie is 10% van de koopsom. De koper dient deze binnen 2 weken nadat het financieringsvoorbehoud is verlopen bij de desbetreffende notaris te deponeren;
* Koper is te allen tijde gerechtigd voor eigen rekening een bouwkundige keuring te (laten) verrichten dan wel andere adviseurs te raadplegen teneinde een goed inzicht te verkrijgen in de staat van onderhoud;
* Ter bescherming van de belangen van zowel koper als verkoper, wordt uitdrukkelijk gesteld dat een koopovereenkomst met betrekking tot deze onroerende zaak eerst dan tot stand komt nadat koper en verkoper de koopovereenkomst hebben getekend (“schriftelijkheidsvereiste”)
Overdracht
- Vraagprijs
- € 850.000 k.k.
- Status
- Verkocht
- Aanvaarding
- In overleg
Bouw
- Object type
- Eengezinswoning, vrijstaande woning
- Soort bouw
- Bestaande bouw
- Bouwjaar
- 1991
Oppervlakte en inhoud
- Woonoppervlakte
- 300 m²
- Perceeloppervlakte
- 685 m²
- Inhoud
- 1304 m³
- Overige inpandige ruimte
- 74 m²
- Gebouwgeb. buitenruimte
- 65 m²
Indeling
- Aantal kamers
- 5 kamers (4 slaapkamers)
- Aantal badkamers
- 2 badkamers (1 toilet)
- Badkamervoorzieningen
- Ligbad, toilet, bidet, dubbele wasbak, walk in douche
- Aantal woonlagen
- 3 woonlagen
Energie
- Energielabel
- C
- Energielabel registratie
- 24-09-2025
Buitenruimte
- Ligging
- Aan rustige weg, in bosrijke omgeving, dichtbij openbaar vervoer, nabij school
- Balkon / dakterras
- Balkon aanwezig
- Tuin
- Garden around
- ligging tuin
- Gelegen op het zuiden en bereikbaar via achterom
Garage
- Soort garage
- Inpandig
- Capaciteit
- 2 auto's
- Voorzieningen
- Verwarming, elektra, elektrische deur
Energieverbruik in Landgraaf
Energielabel deze woning
Energielabel C
Publicatie energielabel: 24-09-2025
Stroomverbruik per jaar
(Gemiddelde vrijstaande woning in Landgraaf)
Gasverbruik per jaar
(Gemiddelde vrijstaande woning in Landgraaf)
* Cijfers zijn afkomstig van het CBS en bedoeld als indicatie en kunnen verschillen voor deze woning
Indicatie hypotheeklasten
Eigen inleg:
Spaargeld / overwaarde
Rente:
Laagste 10-jaars rente
Laagste 10-jaars rente
2,98% - Centraal Beheer Groen... - NHG
3,25% - Centraal Beheer Groen... - 80%
Laagste 20-jaars rente
3,29% - Centraal Beheer Groen... - NHG
3,52% - Centraal Beheer Groen... - 80%
Laagste 30-jaars rente
3,41% - Centraal Beheer Groen... - NHG
3,74% - Centraal Beheer Groen... - 80%
Hypotheek:
Bruto maandlasten: € 0 p/m
Netto maandlasten: € 0 p/m
Hoe berekenen we dit?
Het rentepercentage is gebaseerd op de laagste 10 jaars vaste rente voor één hypotheekdeel. De vermelde rente (3.25% zonder NHG) is gecontroleerd op 01-01-2026. Deze berekening is gebaseerd op een annuïteitenhypotheek die volledig wordt afgelost, waarbij de maandlasten gedurende de gehele looptijd gelijk blijven. De werkelijke rente en netto maandlasten kunnen variëren, afhankelijk van uw persoonlijke situatie en de hypotheekverstrekker. Raadpleeg een financieel adviseur voor een nauwkeurige berekening en advies. Aan deze berekening kunnen geen rechten worden ontleend; het dient enkel als indicatie.
Documentatie
Kadastrale kaart
Leefomgeving
Plattegronden PDF
Brochure
WOZ waarderapport
BAG uittreksel
Bezoek onze website
Bezichtiging
Bod uitbrengen
Waardebepaling
Zoekopdracht
Alles downloaden
Zonnegrenzen bekijken
Op de kaart
Inwoners in Landgraaf
Cijfers voor postcodegebied 6371
- Totaal aantal inwoners
- 6305 inwoners
- Mannen
- 49%
- Vrouwen
- 51%
Inwoners in Landgraaf
Cijfers voor postcodegebied 6371
- tot 15 jaar
- 12%
- 15 tot 25 jaar
- 9%
- 25 tot 35 jaar
- 22%
- 45 tot 65 jaar
- 30%
- 65 en ouder
- 27%
Huishoudens in Landgraaf
Cijfers voor postcodegebied 6371
- Eenpersoons zonder kinderen
- 40%
- Meerpersoons zonder kinderen
- 32%
- Huishoudens zonder kinderen
- 72%
Huishoudens in Landgraaf
Cijfers voor postcodegebied 6371
- Huishoudens met één kind
- 7%
- Huishoudens met meerdere kinderen
- 20%
- Huishoudens met kinderen
- 27%
Woningen in Landgraaf
Cijfers voor postcodegebied 6371
- Woningen voor 1945
- 11%
- Woningen tussen 1945 en 1965
- 35%
- Woningen tussen 1965 en 1975
- 12%
- Woningen tussen 1975 en 1985
- 4%
- Woningen tussen 1985 en 1995
- 16%
Woningen in Landgraaf
Cijfers voor postcodegebied 6371
- Woningen tussen 1995 en 2005
- 7%
- Woningen tussen 2005 en 2015
- 12%
- Woningen na 2015
- 3%
- Huurwoningen
- 50%
- Koopwoningen
- 50%
Overige in Landgraaf
Cijfers voor postcodegebied 6371
- Gemiddelde WOZ waarde
- € 187.000,-
- Personen onder de 65 met uitkering
- 13%
Overige in Landgraaf
Cijfers voor postcodegebied 6371
- Adressen per km²
- 1562
- Stedelijkheid (schaal 1 op 5)
- 80%
Dichtbij Vastgoed
Indien u vragen heeft of u wilt een bezichtiging inplannen, dan kunt u gebruik maken van het formulier hiernaast. Er zal daarna op korte termijn contact met u worden opgenomen.
Desteijnstraat 33
6367 DA, Voerendaal
045 - 820 0202 tom@dichtbijvastgoed.nl www.dichtbijvastgoed.nlContact opnemen
Vastgoed dichtbij
Dichtbij Vastgoed kenmerkt zich door haar persoonlijke en betrokken werkwijze. We kijken verder dan alleen de verkoop van je woning. In een oriënterend en vrijblijvend gesprek bepalen we samen wat je van ons kunt verwachten en wat de strategie is die bij jou en de verkoop van jouw woning past. Wij helpen je van begin tot eind aan een persoonlijk verhuistraject.
Wij vinden het achterhalen van sfeer en beleving waarheen je op zoek bent belangrijk. Gezamenlijk gaan wij graag met je actief op zoek naar de juiste match in de regio!
Wij werken in de volgende regio's, Makelaar Bocholtz, Makelaar Simpelveld, Makelaar Kerkrade, Makelaar Landgraaf, Makelaar Parkstad en Huis verkopen Heerlen, Makelaar Vaals, Makelaar Heuvelland.
Nieuwste reviews
-
Eynattenstraat 9
Tom heeft ons zeer goed begeleid bij der verkoop van onze woning. Korte lijntjes wat de communicatie erg prettig maakt. Alles is snel in gan...
-
Eynattenstraat 9
Tom heeft ons zeer goed begeleid bij der verkoop van onze woning. Korte lijntjes wat de communicatie erg prettig maakt. Alles is snel in gan...
-
Eynattenstraat 9
Tom heeft ons zeer goed begeleid bij der verkoop van onze woning. Korte lijntjes wat de communicatie erg prettig maakt. Alles is snel in gan...