- Wohneinheitenfläche
- Um 300 m²
- Grundstücksfläche
- Um 685 m²
- Baujahr
- Baujahr 1991
- Anzahl der Zimmer
- 5 Räume (4 Schlafzimmer)
Verhandlungsbasis: 850.000,- Euro k.K.
Zustimmung: nach Absprache
EIN EINIGARTIGER ANGELOBEN!
An einer beeindruckenden und ruhigen Lage im beliebten Villenviertel "Moltbos" steht diese stilvolle, freistehende Villa mit einem außergewöhnlich großzügigen Wohnfläche. Umgeben von Grün, Luxus und Privatsphäre bietet dieses Haus alles, was Sie sich vorstellen können: eine geräumige Livingzone mit Kamin, ein brandneues Wohnküchenkonzept (2024), 4 große Schlafzimmer, 2 luxuriöse Badezimmer, ein großes Souterrain mit Doppelgarage und eine schön angelegte Gartenanlage mit einer wunderbaren Ibiza-Atmosphäre.
Keller:
Das Kellergeschoss bietet zahlreiche Möglichkeiten und verfügt über eine multifunktionale Raum (ca. 3,87m x 3,35m) sowie ein repräsentatives Schlafzimmer (ca. 36m²) mit direktem Zugang zu einer modernen Badezimmeranlage (ca. 9m²), die einen Waschtischschrank, eine Spiegelschrank und eine luxuriöse Dusche enthält. Die beheizte Doppelgarage (ca. 60 m²) ist mit Einbauschränken ausgestattet und verfügt über zwei elektrische Schiebetore. Zusätzlich gibt es einen praktischen Waschraum mit Anschlüssen für den Hausgeräteanschluss und zusätzlicher Speicherfläche.
Erdgeschoss:
Vor dem Haus befindet sich eine schön angelegte Vorgarten und Seitenfläche mit doppelter Einfahrt und ausreichend Parkmöglichkeiten. Über eine elegante Treppe erreichen Sie die Eingangshalle des Hauses. Die gemütliche Empfangshalle verfügt über einen modernen Messpunkt und ein vollständig gefliestes Badezimmer mit Waschbecken. Der großzügige Wohnraum (insgesamt ca. 113 m² inklusive Küche!) ist mit einer ambientes Gasofen und mehreren Schiebetüren zum Garten und Balkon ausgestattet. Die luxuriöse Wohnküche ist ein echter Augenschmaus und verfügt über eine großzügige Kochinsel und hochwertige Einbauappliances: Induktionskochfeld mit integrierter Abzugshaube, Kühlschrank, Kombi-Ofen-Mikrowelle und Geschirrspüler. Die sonnige, südlich ausgerichtete Hintergärten ist pflegeleicht angelegt und bietet ultimative Privatsphäre. Hier können Sie das Freizeitleben genießen mit einem großen (teilweise überdachten) Terrassenbereich, üppiger Pflanzenbebauung, einer seitlichen Eingangstür und einer wunderbaren Ibiza-Atmosphäre.
Erste Etage:
Gemütlicher Flur mit stimmungsvoller Treppe; große Schlafzimmer 2 (ca. 32m²) mit schönen Einbauschranksystemen, Schlafzimmer 3 (ca. 15m²), Schlafzimmer 4 (ca. 13m²) mit Einbauwandregal und Zugang zur Heizungsraum mit Platz für das Heizkombi-System (Eigentum). Die großzügige Badezimmerfläche (ca. 19m²) ist voll ausgestattet mit Dusche, Bidet, Toilette, Doppelspülbecken und Tageslichteingang.
Zweite Etage:
Über ein Lukenfeld aus der CV-Raum ist die Bergfliere erreichbar.
Besonderheiten:
- Luxus eigen Haus mit repräsentativem Wohnfläche auf einem großen Grundstück;}
- Gelegen in einer ruhigen, grünen und beliebten Wohnumgebung;}
- Energieeichlabel C;}
- Voll ausgestattet mit (harten) Holz-Fensterrahmen und Doppelscheiben;
- Anwesenheit eines Alarmsystems und einer Überwachungskamera;
- Bis 2025 sind alle Außenseiten neu gestrichen;}
- Majestätische doppelte Einfahrt mit ausreichendem Parkplatz;
- Marmorböden mit Fußbodenheizung im Erdgeschoss und ersten Stock;}
- Kellergeschoß mit Fliesen- und Putzbelag;}
- Gut;},“”,JSON。,:
- Vielfältige Anwendungsmöglichkeiten;}
- In der Nähe von Läden, Schulen, Naturgebieten und Ausfallstraßen.
Dieses Objekt wird Ihnen in kollegialer Zusammenarbeit mit Trafas Makelaardij angeboten.
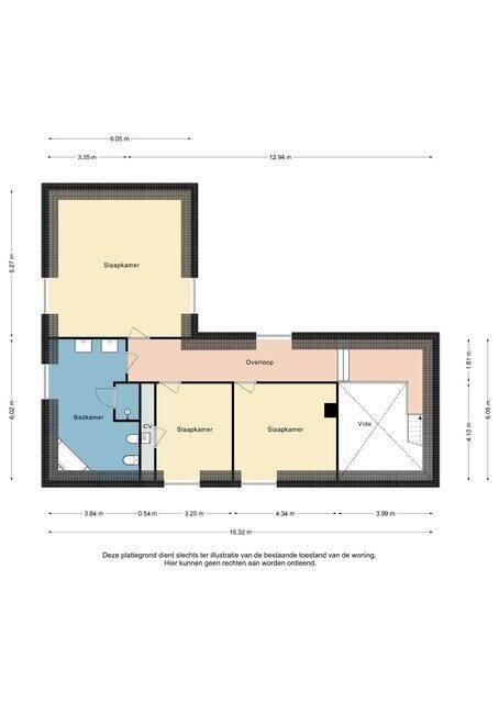
Siehe beigefügte Planzeichnungen für die genauen Maße in dieser Präsentation.
Für Terminvereinbarungen kontaktieren Sie den verkaufsfreundlichen Makler: Tom van Houtem (06-20269830).
Haftungsausschluss;
* Alle Größen sind ungefähre Maße;
* Keine Rechte können aus dieser Präsentation abgeleitet werden;
* Die Pfandbrief/Bankgarantie beträgt 10% des Kaufpreises. Der Käufer hat diesen innerhalb von zwei Wochen nach dem Ablauf der Finanzierungsbedingung beim zuständigen Notar einzuzahlen;
* Kupfer ist jederzeit berechtigt, auf eigene Kosten eine Bauappraesion durchführen zu lassen oder sich mit anderen Beratern beraten zu lassen, um einen guten Einblick in den Zustand der Instandhaltung zu erhalten;
* Zur Schutz der Interessen sowohl des Käufers als des Verkäufers wird ausdrücklich festgestellt, dass eine Kaufvereinbarung in Bezug auf dieses Immobilienobjekt erst dann zustande kommt, nachdem sich Käufer und Verkäufer schriftlich über die Kaufvereinbarung geeinigt und diese unterschrieben haben („Schriftformvorschrift“)
Übertrag
- Verhandlungspreis
- 850.000,- EUR
- Status
- Verkauft unter Vorbehalten
- Hinnehme
- Im Gespräch
Bau
- Gegenstandsart
- Einzelfamilienhaus
- Bauart
- Existierende Bauwerke
- Baujahr
- 1991
Oberfläche und Inhalt
- Wohneinheitenfläche
- 300 m²
- Grundstücksfläche
- 685 m²
- Inhalt
- 1304 m³
- Sonstiger eingebautes Raum
- 74 m²
- Gebäudebezogene Freifläche
- 65 m²
Einteilung
- Anzahl der Zimmer
- 5 Räume (4 Schlafzimmer)
- Anzahl der Badezimmer
- 2 Badezimmer (1 Toilette)
- Badezimmerausstattung
- Wasserrutsche, Toilette, Bidet, Doppelspülbecken, Walk-in-Dusche
- Anzahl der Wohnetagen
- 3 Wohnetagen
Energie
- Energietag
- C
- Energietag-Register
- 24-09-2025
Außenraum
- Lage
- An ruhiger Straße, im grün umgebenen Gebiet, in der Nähe von öffentlichen Verkehrsmitteln, nahe Schule
- Balkon / Dachterras
- Balkon vorhanden
- Garten
- Garten umher
- Lage des Gartens
- Lage im Süden und über eine Seitentür erreichbar
Garage
- Garagenart
- Einpflanzen
- Kapazität
- 2 Autos
- Maßnahmen
- Heizung, Elektrik, elektrisches Tor
Energieverbrauch ein Landgraaf
Energietag der Wohnung
Energielabel C
Energietagmenteil: 24-09-2025
Jahres-Stromverbrauch
(Durchschnitt Eigentumswohnung in Landgraaf)
Gaskonsum pro Jahr
(Durchschnitt Eigentumswohnung in Landgraaf)
* Zahlen stammen vom CBS und sollen als Indikatoren dienen und können für diese Wohnung unterschiedlich sein
Hypothekenbelastungen
Eigene Einlage:
Ersparnisse / Überwert
Zins:
Niedrigste 10-Jahres-Zinssatz
Niedrigste 10-Jahres-Zinssatz
2,88% - Centraal Beheer Groen... - NHG
3,1% - Argenta Groen Hypotheek... - 80%
Niedrigste 20-jährige Zinssatz
3,19% - Centraal Beheer Groen... - NHG
3,47% - Argenta Groen Hypothee... - 80%
Niedrigste 30-jährige Zinssatz
3,34% - Centraal Beheer Groen... - NHG
3,64% - Argenta Groen Hypothee... - 80%
Hypothek:
Bruttomonatslasten: € 0 p/m
Nettomonatskosten: € 0 p/m
Wie berechnen wir dies?
Der Zinssatz basiert auf dem niedrigsten 10-jährigen Festzins für einen einzelnen Hypothekenteil. Der angegebene Zinssatz (3.1% zonder NHG) wurde am 10-12-2025 überprüft. Diese Berechnung basiert auf einer Annuitätenhypothek, die vollständig zurückgezahlt wird, wobei die monatlichen Zahlungen während der gesamten Laufzeit gleich bleiben. Der tatsächliche Zinssatz und die monatlichen Nettokosten können je nach Ihrer persönlichen Situation und dem Hypothekengeber variieren. Wenden Sie sich für eine genaue Berechnung und Beratung an einen Finanzberater. Aus dieser Berechnung können keine Rechte abgeleitet werden; sie dient lediglich als Orientierung.
Dokumentation
Katasterkarte
Lebensumgebung
Planansichten PDF
Broschüre
Wertbescheinigung
Krankenkassenbeleg
Besuchen Sie unsere Website
Besichtigung
Boden verlegen
Wertschätzung
Suchanfrage
Alles herunterladen
Sonnengrenzen betrachten
Auf der Karte
Bewohner von Landgraaf
Zahlen für Postleitzahl-Region 6371
- Gesamtbevölkerungszahl
- 6305 Bewohner
- Männer
- 49%
- Frauen
- 51%
Bewohner von Landgraaf
Zahlen für Postleitzahl-Region 6371
- bis 15 Jahre
- 12%
- 15 bis 25 Jahre
- 9%
- 25 bis 35 Jahre
- 22%
- 45 bis 65 Jahre
- 30%
- 65 und älter
- 27%
Haushalte von Landgraaf
Zahlen für Postleitzahl-Region 6371
- Einpersonig ohne Kinder
- 40%
- Erwachsene ohne Kinder
- 32%
- Haushalte ohne Kinder
- 72%
Haushalte von Landgraaf
Zahlen für Postleitzahl-Region 6371
- Haushalte mit einem Kind
- 7%
- Haushalte mit mehreren Kindern
- 20%
- Haushalte mit Kindern
- 27%
Wohnungen in Landgraaf
Zahlen für Postleitzahl-Region 6371
- Wohnungen vor 1945
- 11%
- Wohnungen zwischen 1945 und 1965
- 35%
- Wohnungen zwischen 1965 und 1975
- 12%
- Wohnungen zwischen 1975 und 1985
- 4%
- Wohnungen zwischen 1985 und 1995
- 16%
Wohnungen in Landgraaf
Zahlen für Postleitzahl-Region 6371
- Wohnungen zwischen 1995 und 2005
- 7%
- Wohnungen zwischen 2005 und 2015
- 12%
- Wohnungen nach 2015
- 3%
- Mietwohnungen
- 50%
- Eigentumswohnungen
- 50%
Sonstige Einzahlungen Landgraaf
Zahlen für Postleitzahl-Region 6371
- Durchschnittliche WOZ-Wert
- € 187.000,-
- Personen unter 65 Jahren mit Hinterbliebenengeld
- 13%
Sonstige Einzahlungen Landgraaf
Zahlen für Postleitzahl-Region 6371
- Adressen pro Quadratkilometer
- 1562
- Urbanität (Skala von 1 bis 5)
- 80%
Dichtbij Vastgoed
Falls Sie Fragen haben oder eine Besichtigung planen möchten, können Sie das Formular rechts verwenden. Danach wird Ihnen kurzfristig jemand kontaktieren.
Desteijnstraat 33
6367 DA, Voerendaal
045 - 820 0202 tom@dichtbijvastgoed.nl www.dichtbijvastgoed.nlKontakt aufnehmen
Immobilie in der Nähe
Nähe Immobilien ist durch ihre persönliche und engagierte Arbeitsweise gekennzeichnet. Wir betrachten mehr als nur den Verkauf deines Hauses. In einem orientierenden und bindungslosen Gespräch bestimmen wir gemeinsam, was du von uns erwarten kannst und welche Strategie zu dir und dem Verkauf deines Hauses passt. Wir begleiten dich von Anfang bis Ende auf einen persönlichen Umzugsweg.
Wir finden das Nachvollziehen der Stimmung und des Erlebnisses, auf die du aus bist, wichtig. Gemeinsam suchen wir gerne mit dir aktiv den richtigen Partner in der Region!
Wir arbeiten in den folgenden Regionen: Immobilienbocholtz, Immobilienmakler Simpelveld, Immobilienmakler Kerkrade, Immobilienmakler Landgraaf, Immobilienmakler Parkstad und Hausverkäufer Heerlen, Immobilienmakler Vaals, Immobilienmakler Heuvelland.
Neueste Bewertungen
-
Eynattenstraat 9
Tom heeft ons zeer goed begeleid bij der verkoop van onze woning. Korte lijntjes wat de communicatie erg prettig maakt. Alles is snel in gan...
-
Sougnezstraat 8
Dichtbij Vastgoed heeft al meerdere huizen voor mij verkocht. Elke keer is Tom erg betrokken en zet hij alles op alles om de verkoop zo soep...
-
Gilmaro Tol
Tijdens mijn zoektocht naar een woning kwam ik een appartement tegen dat werd aangeboden door Dichtbij Vastgoed. Tijdens de bezichtiging voe...